home demblin architects
 A 1040 Vienna  Brahmsplatz 7      office@demblin.net
 

  Urban Design
  Urban Housing
  Residential
    Steinbach
    Villa Quadrata

    House in Malta
    Kieneck
    Villa Paradisgasse
    Ebersdorf

    Villa Böcklin

    Villa Vogelsang
    Villa am Pilsensee

    Tullnerbach
    Perchtoldsdorf
  Commercial
  Religious
  Cultural
  Schools
  Conversion
  Interior Design
  Drawings

  About us

 

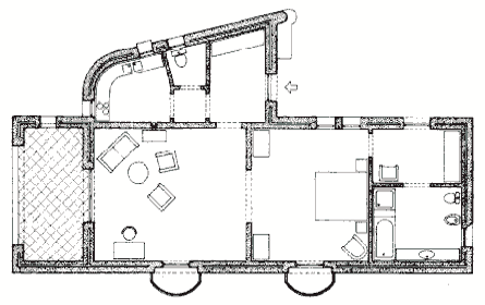
HOUSE IN MALTA
1979-80


This house, which stands in a former quarry with views towards the bay of Mellieħa, addresses the contrast of closed walls and scrupulously placed openings in the sedate wall areas. With this, the architecture clearly follows Maltese building traditions.
The walls are a cavity construction formed of locally quarried limestone. The inner face of the walls is whitewashed so that the masonry bond remains visible. The floors are surfaced with large limestone flag pavings.

           
  zurück  1 2   vor